2-pokojowa nieruchomość o powierzchni 55,49m2 mieszcząca się na 4-piętrze. Budynek z 2005 roku, wyposażony w windę do poziomu garażu.
Osiedle ogrodzone, monitorowane, dodatkowo chronione, na terenie wewnętrzny parking, plac zabaw, zieleń, ławeczki.
Mieszkanie jednostronne - zachód, stan do wprowadzenia.
Pomieszczenia:
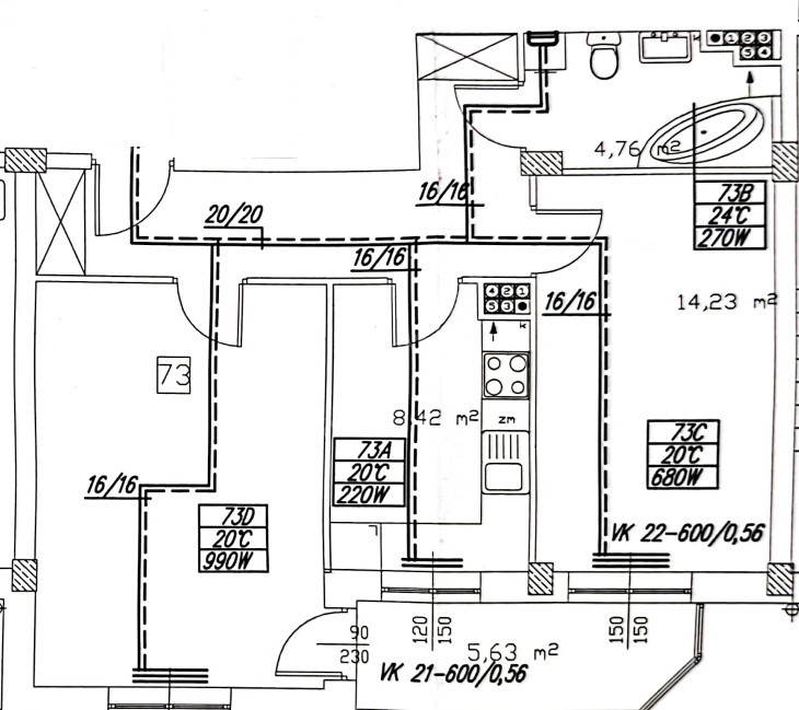
- salon (18,17m2) z otwartą, wyposażoną kuchnią (8,27m2) z oknem (możliwość zamknięcia kuchni), wyjściem na balkon.
- pokój 14,17m2 z pojemną szafą.
- hall 10,28m2 z szafą wnękową zarówno przy drzwiach, jak i wejściu do łazienki.
- łazienka 4,6m2 z ogrzewaniem podłogowym, wyposażona w kabinę prysznicową, umywalkę, pralkę, WC.
Dobrze skomunikowana okolica - bliskość al. Jerozolimskich, przystanek autobusowy tuż przy wyjściu z osiedla, dogodny dojazd do Południowej Obwodnicy Warszawy i S8.
Sąsiedztwo Centrum Skorosze z bogatą ofertą sklepów, lokali usługowych, ponadto w pobliżu Biedronka, Leroy Merlin, OSiR Ursus (m.in. z pływalnią, kortami tenisowymi, saunami), liczne placówki edukacyjne.
Do mieszkania przynależy komórka lokatorska 2,79m2, położona na tym samym piętrze co nieruchomość płatna dodatkowo 20 000 zł, Możliwość parkowania jednego samochodu na wyznaczonym miejscu parkingowym w garażu podziemnym i na ogólnodostępnych miejscach wewnątrz osiedla.
Więcej informacji udzielę telefonicznie.
Zapraszam do kontaktu
Krzysztof Staniaszek
tel. 880 336 680
krzysztof.staniaszek@phinance.pl
2 pokoje z balkonem, komórka, miejsce parkingowe
lokalizacja: Warszawa
748 000,00 PLN
13 479,91 PLN
Dane szczegółowe
- Typ transakcji: sprzedaż
- Typ nieruchomości: Mieszkanie
- Lokalizacja: Warszawa Ursus
- Powierzchnia:55,49 m2
- Liczba pokoi: 2
- Rok budowy: 2005
- Piętro: 4 z 6
- Numer oferty: 373157
- Cena: 748 000,00 PLN
- Cena za m2: 13 479,91 PLN
Opis nieruchomości
Kontakt do opiekuna:
Phinance S.A.