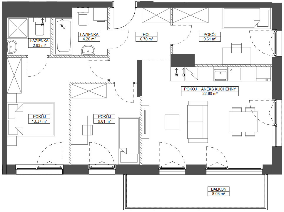
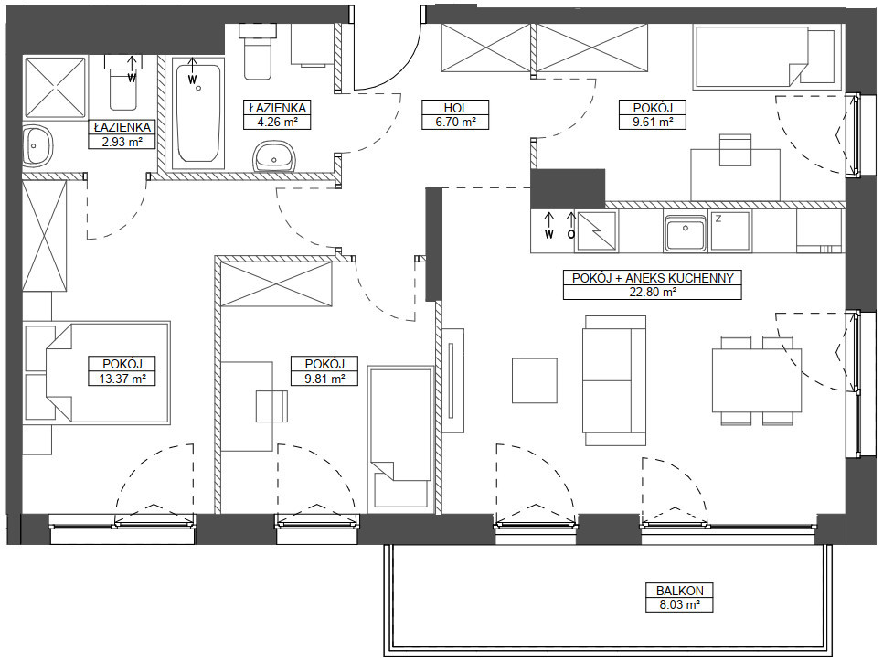
Sprzedam wyjątkowe, 4-pokojowe mieszkanie (71,57 m² - powierzchnia ścian 2,09 m² = 69,48 m² pow. użytkowa) narożne, na 1. piętrze w nowoczesnym, kameralnym budynku w Gdyni (Wielki Kack). To idealna propozycja dla osób szukających balansu między otoczeniem natury a bliskością miasta.
Układ pomieszczeń (niezwykle funkcjonalny):
• Salon z aneksem kuchennym (22,80 m²)
• Duży balkon ekspozycja zachodnia (8,03 m²)
• 3 ustawne sypialnie (13,37 m², 9,81 m² oraz 9,61 m²)
• 2 łazienki (4,26 m² oraz 2,93 m²)
• Przestronny hol (6,70 m²)
• Swoboda aranżacji - pow. pod ściankami 2,09 m²
Główne atuty:
• Otoczenie: Osiedle zlokalizowane w głębi Trójmiejskiego Parku Krajobrazowego, blisko terenów spacerowych i stadniny koni. Tylko 15 min do centrum Gdyni!
• Technologia Smart Home: Zdalne sterowanie oświetleniem, temperaturą i multimediami w standardzie.
• Ekologia i oszczędności: Panele fotowoltaiczne (niższe opłaty za części wspólne), energooszczędne oświetlenie LED, ogrody deszczowe.
• Wysoki standard: Panoramiczne trzyszybowe okna, podwyższona izolacja akustyczna, indywidualna kotłownia dla budynku.
• Bezpieczeństwo i wygoda: Monitoring HD, wideofony, antywłamaniowe drzwi, zamykane wózkownie, stacje dla rowerów oraz podgrzewane zjazdy do garażu podziemnego.
Gotowa infrastruktura w okolicy (planowana pętla autobusowa, bliskość szkół i przedszkoli).
Zainteresowanych zapraszam do kontaktu w celu poznania szczegółów i umówienia prezentacji!
FINANSOWANIE
Phinance S.A. od dekad: ubezpieczenia, doradztwo finansowo - kredytowe, to nasza pasja i specjalizacja na wielką skalę. Bardzo mile Was zaskoczymy - jeśli zapytajcie Państwo o kredyt hipoteczny.
KONTAKT
Adam Leks - Phinance S.A. _ Gdynia ul. Świętojańska 18/2 _ e-mail: Adam.Leks@Phinance.pl _ kom: +48 604 626 212 _ www.Phinance.pl
Wizualizacje mają charakter poglądowy i nie stanowią elementu oferty w rozumieniu art. 66 Kodeksu cywilnego. Mieszkanie sprzedawane jest w stanie deweloperskim.
Duże 4 pokoje 71,5 m² narożne zachód natura
lokalizacja: Gdynia
681 000,00 PLN
9 515,16 PLN
Dane szczegółowe
- Typ transakcji: sprzedaż
- Typ nieruchomości: Mieszkanie
- Lokalizacja: Gdynia
- Powierzchnia:71,57 m2
- Liczba pokoi: 4
- Rok budowy: 2026
- Piętro: 1 z 5
- Numer oferty: 135999
- Cena: 681 000,00 PLN
- Cena za m2: 9 515,16 PLN
-
Parking podziemny:
32 000,00 PLN (12,50 m2)
-
Komórka lokatorska:
15 000,00 PLN (2 m2)