3 pokoje • 61 m² • balkon 14,90 m² • 3. piętro • termin wydania 1 kwartał 2027 • stan deweloperski • Cena brutto: 845.000 zł
OSIEDLE i APARTAMENT
Nowoczesne, komfortowe, zaprojektowane na samowystarczalne osiedle (z ładowarkami elektrycznymi i fotowoltaiką) z myślą o współczesnym stylu życia. Łączy funkcjonalność z wysoką estetyką i bliskością natury. Otulone zielenią, zachwyca modernistyczną architekturą i harmonijnym układem urbanistycznym. Na 3-cim piętrze znajduje się ponad 61 metrowy (3 pokoje) apartament pożądaną ekspozycją: południowo-zachodnią. Zapraszam do zapoznania się i zakupu.
CIEKAWOSTKA
Mamy w naszej ofercie z rynku pierwotnego w woj. pomorskim ponad 500 samych tylko mieszkań 3 pokojowych. Zachęcamy do zapoznania się z poniższą nieruchomością i kontaktu / rozmowy, także o alternatywnych mieszkaniach.
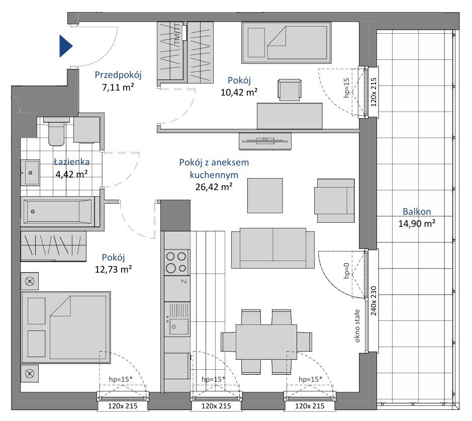
OPIS APARTAMENTU
Przedstawiamy jasne, funkcjonalne mieszkanie 3 pokojowe o powierzchni 61,10 m², położone na 3. piętrze nowoczesnego osiedla. Przestronna strefa dzienna z aneksem kuchennym ma 26,42 m², płynnie łączy się z wyjątkowo szerokim balkonem 14,90 m² Duży balkon znacząco powiększa przestrzeń użytkową i daje realne możliwości aranżacji strefy wypoczynkowej lub jadalnej na świeżym powietrzu. Dwie ustawne sypialnie 12,73 m² i 10,42 m² zapewniają komfort prywatnej strefy, a praktyczny przedpokój 7,11 m² z miejscem na zabudowę ułatwia organizację. Łazienka ma 4,42 m² i pozwala na ergonomiczne rozplanowanie wyposażenia. Termin wydania lokalu przewidziany jest na 1 kwartał 2027, jednak spora część sąsiadujących mieszkań jest już niedostępna (nie zwlekaj, mieszkania poniżej i powyżej już sprzedane).
NAJWAŻNIEJSZE ATUTY
• Duży balkon 14,90 m² — rzadkość w tej klasie mieszkań; realne przedłużenie strefy dziennej.
• Przemyślany układ — otwarta strefa dzienna i dwie niezależne sypialnie; łatwa aranżacja pod rodzinę lub najem.
• Ekspozycja południowo zachodnia — dobre doświetlenie w dzień, popołudniami jak i wieczorem.
• Pełna infrastruktura osiedla — lokale usługowe, place zabaw i strefy rekreacyjne w planie inwestycji.
• Atrakcyjność inwestycyjna — układ i balkon zwiększają potencjał najmu krótkoterminowego i długoterminowego.
ELEMENTY OPCJONALNE, MOŻLIWE DO ZAKUPU:
• Komórka lokatorska,
• Pomieszczenie na jednoślady,
• Miejsce parkingowe zewnętrzne,
• Miejsce postojowe w hali garażowej.
FINANSOWANIE
Phinance S.A. od dekad: ubezpieczenia, doradztwo finansowo - kredytowe, to nasza pasja i specjalizacja na wielką skalę. Bardzo mile Was zaskoczymy - jeśli zapytajcie Państwo np. o kredyt hipoteczny.
PODSUMOWANIE
To mieszkanie (apartament) to unikalna okazja - ostatni tak ładnie doświetlony z dużym balkonem, dostępny lokal w prestiżowym budynku na nowoczesnym osiedlu. Przestronne, jasne wnętrza i pełna infrastruktura osiedla sprawiają, że jest to idealna propozycja zarówno dla rodzin, jak i inwestorów.
KONTAKT
Adam Leks - Phinance S.A. _ Gdynia ul. Świętojańska 18/2 _ e-mail: Adam.Leks@Phinance.pl _ kom: +48 604 626 212 _ www.Phinance.pl
Wizualizacje mają charakter poglądowy i nie stanowią elementu oferty w rozumieniu art. 66 Kodeksu cywilnego. Mieszkanie sprzedawane jest w stanie deweloperskim.
Rodzinny apartament z dużym balkonem ładowarka
lokalizacja: Gdynia
845 000,00 PLN
13 829,79 PLN
Dane szczegółowe
- Typ transakcji: sprzedaż
- Typ nieruchomości: Mieszkanie
- Lokalizacja: Gdynia Dąbrowa
- Powierzchnia:61,10 m2
- Liczba pokoi: 3
- Rok budowy: 2025
- Piętro: 3 z 5
- Numer oferty: 782693
- Cena: 845 000,00 PLN
- Cena za m2: 13 829,79 PLN
-
Parking podziemny:
39 960,00 PLN (12,50 m2)
-
Komórka lokatorska:
11 755,00 PLN (2,40 m2)
-
Parking naziemny:
25 000,00 PLN (12,50 m2)
-
Parking podziemny:
10 000,00 PLN (2,70 m2)