Klucze Teraz! 2pok 36m2| Spokojna okolica>MP hala!

lokalizacja: Poznań, Jasielska

436 000,00 PLN

12 090,96 PLN

Opis nieruchomości

Gotowe do odbioru! 2 pokoje 36m2 z balkonem! MP w hali! ZOBACZ NA ŻYWO!

--Zadzwoń 7 dni w tygodniu od 8:00 do 21:00 zarówno w niedziele i święta--
>Posiadam w ofercie także inne metraże oraz układy mieszkań z tej inwestycji !

Zapraszam na prezentację mieszkania !

Zakup od dewelopera:
-Nie płacisz prowizji!
-Nie płacisz podatku PCC! (Oszczędzasz aż 9 000 PLN)

GRATIS ! Rok ubezpieczenia twojej nieruchomości za DARMO z naszym kredytem!

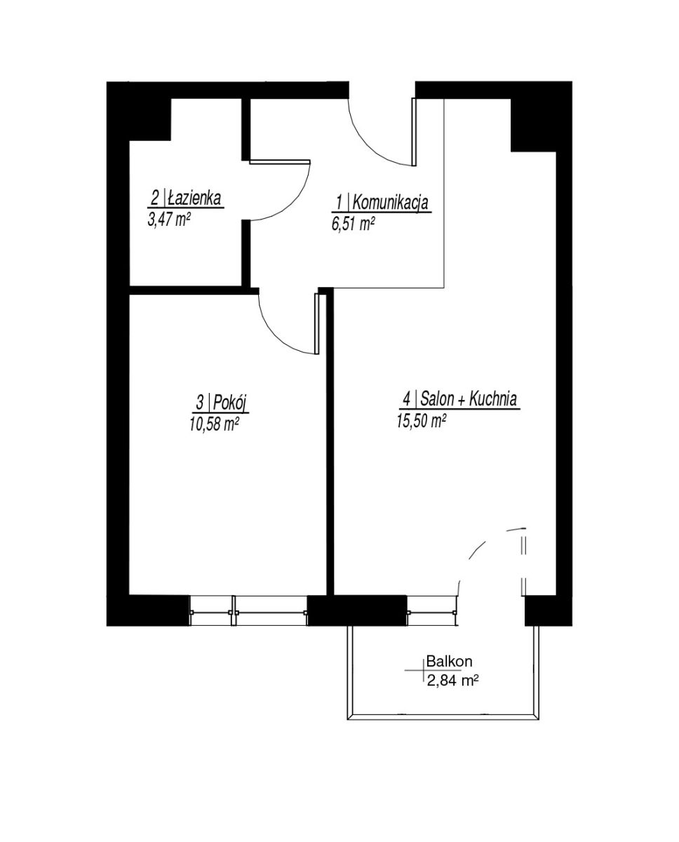
Oferuję na sprzedaż mieszkanie o powierzchni 36 m², położone na czwartym piętrze nowoczesnego, 5-piętrowego budynku z windą. To 2-pokojowe mieszkanie z balkonem o powierzchni 2,84 m², które jest świetnym wyborem jako pierwsze mieszkanie oraz ma ogromny potencjał inwestycyjny!

Mieszkanie 36 m²:

- Salon + kuchnia 16,79 m2

- Pokój 10,55 m2

- Łazienka 3,47 m2

- Komunikacja 5,20 m2

- Balkon 2,84 m2

Osiedle znajduje się w zielonej części Poznania - Podolany.
W pobliżu znajdują się sklepy, restauracje, szkoły, galeria handlowa, kino, pływalnia i siłownie oraz jezioro rusałka.
Dogodna komunikacja miejska zapewnia szybki dojazd do centrum.

--Do ceny należy doliczyć miejsce postojowe w hali garażowej - 35 000 PLN - 45 000 PLN

MASZ PYTANIA ? ZADZWOŃ 7 dni w tygodniu w godzinach 8:00 - 21:00

Wojciech Gołębiowski - numer licencji zawodowej PPRN 24005
Phinance Nieruchomości

A jeśli zastanawiasz się nad kredytem czy ubezpieczeniem - z nami nie musisz szukać dalej. Wszystko załatwisz podczas jednego spotkania bezpłatnie, w pełni bezpiecznie i bez stresu!

Możliwość wykończenia już od 890 zł/m2 !

Rzut oraz wizualizacje w ofercie przedstawiają przykładowy sposób aranżacji wnętrza. Powyższa oferta ma charakter informacyjny i nie stanowi oferty handlowej w rozumieniu art. 66 §1 Kodeksu Cywilnego.

Adres strony www: https:// NULL

Plan Nieruchomości

Kontakt do opiekuna:

Phinance S.A.

Wojciech Gołębiowski
Nieprawidłowy adres E-mail
Mapa

Strona korzysta z plików cookie w celu realizacji usług zgodnie z Polityką prywatności. Możesz określić warunki przechowywania lub dostępu do cookie w Twojej przeglądarce.