2pok 40 m²| Balkon Zachód| Klucze luty| Podolany

lokalizacja: Poznań, Jasielska

466 415,00 PLN

11 640,00 PLN

Opis nieruchomości

Klucze już w lutym 2026! | 40 m² | 2 pokoje z balkonem | Szybko dojazd do centrum Poznania !

->ZADZWOŃ 7 dni w tygodniu w godz. 8:00-21:00 (również w niedziele i święta)
-> 694969953

Nie czekaj - zapytaj o dostępność i szczegóły układu

W ofercie posiadam więcej dostępnych metraży domów

-> Bezpłatne wsparcie przy zakupie nieruchomości z rynku pierwotnego

Bądź napisz w formularzu

GRATIS ! Rok ubezpieczenia twojej nieruchomości za DARMO z naszym kredytem!

Nie płacisz prowizji!

Nie płacisz podatku PCC! (Oszczędzasz aż 11 000 PLN)

Przedstawiam ofertę sprzedaży mieszkania o powierzchni 40 m², położonego na 1. piętrze 5-piętrowego budynku z widną. To 2-pokojowe mieszkanie z balkonem i świetną lokalizacją łączy w sobie komfort codziennego życia oraz potencjał inwestycyjny.

Usytuowany od nasłonecznionej strony południowo - zachodniej, z widokiem na planowany w przyszłości przez Miasto Poznań park.

Zapraszam na prezentację mieszkania !
-> 694969953

Osiedle powstaje w zielonej części Poznania - Podolany.
W pobliżu znajdują się sklepy, restauracje, szkoły, galeria handlowa, kino, pływalnia i siłownie.
Dogodna komunikacja miejska zapewnia szybki dojazd do centrum.


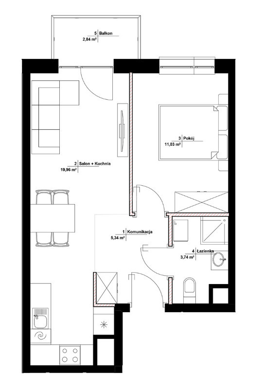
Mieszkanie składa się z - salonu z aneksem kuchennym 19,96m2, sypialni 11,03m2, łazienki 3,74m2, przedpokoju 5,34m2 oraz balkonu 2,84 m2

Do ceny należy doliczyć miejsce postojowe w hali garażowej od 35 000 PLN - 40 000 PLN

MASZ PYTANIA ? ZADZWOŃ 7 dni w tygodniu w godzinach 8:00 - 21:00
Posiadam w ofercie także inne metraże oraz układy mieszkań z tej inwestycji !

Wojciech Gołębiowski - numer licencji zawodowej PPRN 24005
Phinance Nieruchomości
694969953
->Zapewniam pełne darmowe wsparcie w każdym procesie zakupu nieruchomości

A jeśli zastanawiasz się nad kredytem czy ubezpieczeniem - z nami nie musisz szukać dalej. Wszystko załatwisz podczas jednego spotkania bezpłatnie, w pełni bezpiecznie i bez stresu!

Możliwość wykończenia już od 890 zł/m2 !

Rzut oraz wizualizacje w ofercie przedstawiają przykładowy sposób aranżacji wnętrza. Powyższa oferta ma charakter informacyjny i nie stanowi oferty handlowej w rozumieniu art. 66 §1 Kodeksu Cywilnego.

Adres strony www: https:// NULL

Plany Nieruchomości

Kontakt do opiekuna:

Phinance S.A.

Wojciech Gołębiowski
Nieprawidłowy adres E-mail
Mapa

Strona korzysta z plików cookie w celu realizacji usług zgodnie z Polityką prywatności. Możesz określić warunki przechowywania lub dostępu do cookie w Twojej przeglądarce.