Ogródek aż 60m²| 2pok. 36m²| Doskonała lokalizacja

lokalizacja: Poznań

446 148,00 PLN

12 240,00 PLN

Opis nieruchomości

Okazja ! 36-metrowe 2 pokojowe mieszkanie z ogródkiem aż 60 m² z widokiem na planowany park | Klucze luty 2026!

->ZADZWOŃ 7 dni w tygodniu w godz. 8:00-21:00 (również w niedziele i święta)
->Posiadam w ofercie także inne metraże oraz układy mieszkań z tej inwestycji

Nie czekaj - zapytaj o dostępność i szczegóły układu!
694969953

Bądź napisz w formularzu


GRATIS ! Rok ubezpieczenia twojej nieruchomości z DARMO z naszym kredytem!

Oferuję na sprzedaż mieszkanie o powierzchni 36 m², położone na parterze nowoczesnego, 5-piętrowego budynku z windą. To 2-pokojowe mieszkanie z własnym ogródkiem o powierzchni aż 60 m², z widokiem na planowany park - przestrzeń, której nie znajdziesz w standardowych ofertach.

Nie płacisz prowizji!

Nie płacisz podatku PCC! (Oszczędzasz aż 9 000 PLN)

Zapraszam na prezentację mieszkania !
694969953

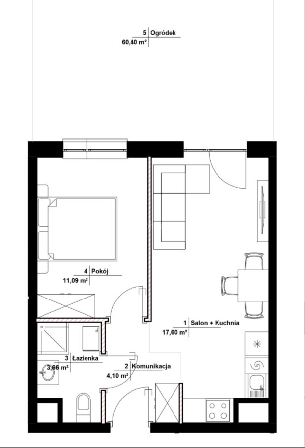
Mieszkanie 36 m²:
- Salon + kuchnia 17,65 m2
- Pokój 11,09 m2
- Łazienka 3,66 m2
- Komunikacja 4,10 m2
- Ogródek 60 m2

Osiedle znajduje się w zielonej części Poznania - Podolany.
W pobliżu znajdują się sklepy, restauracje, szkoły, galeria handlowa, kino, pływalnia i siłownie oraz jezioro rusałka.
Dogodna komunikacja miejska zapewnia szybki dojazd do centrum.

Do ceny należy doliczyć miejsce postojowe w hali garażowej - 35 000 PLN - 45 000 PLN

MASZ PYTANIA ? ZADZWOŃ 7 dni w tygodniu w godzinach 8:00 - 21:00


Wojciech Gołębiowski - numer licencji zawodowej PPRN 24005
Phinance Nieruchomości
694969953
-> Zapewniam pełne darmowe wsparcie w zakupie nieruchomości!

A jeśli zastanawiasz się nad kredytem czy ubezpieczeniem - z nami nie musisz szukać dalej. Wszystko załatwisz podczas jednego spotkania bezpłatnie, w pełni bezpiecznie i bez stresu!


Możliwość wykończenia już od 890 zł/m2 !

Rzut oraz wizualizacje w ofercie przedstawiają przykładowy sposób aranżacji wnętrza. Powyższa oferta ma charakter informacyjny i nie stanowi oferty handlowej w rozumieniu art. 66 §1 Kodeksu Cywilnego.

Adres strony www: https:// NULL

Plany Nieruchomości

Kontakt do opiekuna:

Phinance S.A.

Wojciech Gołębiowski
Nieprawidłowy adres E-mail
Mapa

Strona korzysta z plików cookie w celu realizacji usług zgodnie z Polityką prywatności. Możesz określić warunki przechowywania lub dostępu do cookie w Twojej przeglądarce.