PROMOCJA❗4 Pokoje 81 m² | 2 Balkony | GOTOWE❗

lokalizacja: Poznań

749 990,00 PLN

9 169,70 PLN

Opis nieruchomości

OKAZJA ! PROMCJA DO KOŃCA PAŹDZIERNIKA ! 9 170 zł/m² ZA 4 POKOJE + 2 BALKONY !

Mieszkanie jest GOTOWE do odbioru już TERAZ !

Nie Płacisz PCC2% !

Nie Płacisz Prowizji !

Oferuję na sprzedaż mieszkanie o powierzchni 81 m², położone na pierwszym piętrze nowoczesnego, 5-piętrowego budynku z windą. To 4-pokojowe mieszkanie z bardzo funkcjonalnym układem, które ma aż 2 balkony ! To rozwiązanie gwarantuje więcej światła, świeżego powietrza i przyjemną, naturalną atmosferę we wnętrzu.

Zapraszam do obejrzenia mieszkania !

Kontakt - 694969953

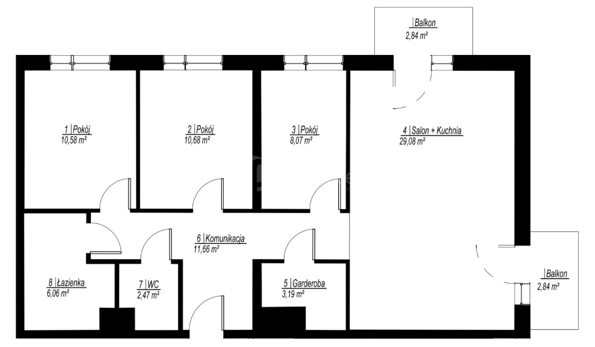
Mieszkanie 81,79 m²:
               - Salon + kuchnia 29,08 m2
               - Pokój I 10,58 m2
               - Pokój II 10,68 m2
               - Pokój III 8,07 m2
               - Łazienka 6,06 m2
               - WC 2,47 m2
               - Komunikacja 11,66 m2
               - Balkon I 2,84 m2
               - Balkon II 2,84 m2

Osiedle znajduje się w zielonej części Poznania - Podolany.
W pobliżu znajdują się sklepy, restauracje, szkoły, galeria handlowa, kino, pływalnia i siłownie oraz jezioro rusałka.
Dogodna komunikacja miejska zapewnia szybki dojazd do centrum.

Umów się na prezentację mieszkania !

Do ceny należy doliczyć miejsce postojowe w hali garażowej - 35 000 PLN do 45 000 PLN
-- Opcjalnie komórka lokatorska w cenie 4 000 PLN/m2

MASZ PYTANIA ? ZADZWOŃ 7 dni w tygodniu w godzinach 8:00 - 21:00
Posiadam w ofercie także inne metraże oraz układy mieszkań z tej inwestycji !

Wojciech Gołębiowski - numer licencji zawodowej PPRN 24005
Phinance Nieruchomości
694969953

A jeśli zastanawiasz się nad kredytem czy ubezpieczeniem - z nami nie musisz szukać dalej. Wszystko załatwisz podczas jednego spotkania bezpłatnie, w pełni bezpiecznie i bez stresu !

Możliwość wykończenia już od 890 zł/m2 !

Rzut oraz wizualizacje w ofercie przedstawiają przykładowy sposób aranżacji wnętrza. Powyższa oferta ma charakter informacyjny i nie stanowi oferty handlowej w rozumieniu art. 66 §1 Kodeksu Cywilnego.

Adres strony www: https:// NULL

Plany Nieruchomości

Kontakt do opiekuna:

Phinance S.A.

Wojciech Gołębiowski
Nieprawidłowy adres E-mail
Mapa

Strona korzysta z plików cookie w celu realizacji usług zgodnie z Polityką prywatności. Możesz określić warunki przechowywania lub dostępu do cookie w Twojej przeglądarce.