3 pokoje z balkonem | 55 m² | Klucze luty 2026❗

lokalizacja: Poznań

589 638,00 PLN

10 736,31 PLN

Opis nieruchomości

Nowoczesne 3 pokoje 55 m² z balkonem | Klucze do odebrania już w lutym 2026 ❗

BEZ prowizji!

BEZ podatku PCC!

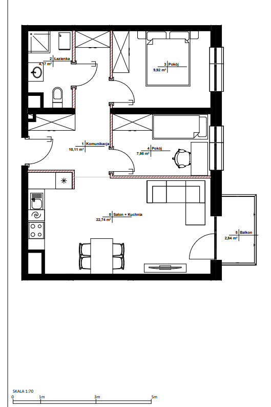
Oferuję na sprzedaż mieszkanie o powierzchni 55 m², położone na drugim piętrze nowoczesnego, 5-piętrowego budynku z windą. To 3-pokojowe mieszkanie z bardzo funkcjonalnym układem oraz balkonem 2,84 m2. 

Zapraszam do obejrzenia inwestycji

Kontakt tel. 694969953

Mieszkanie 54,92 m²:
- Salon + kuchnia 22,74 m2
- Pokój I 9,92 m2
- Pokój II 7,98 m2
- Łazienka 4,17 m2
- Komunikacja 10,11 m2
- Balkon 2,84 m2

Osiedle znajduje się w zielonej części Poznania - Podolany.
W pobliżu znajdują się sklepy, restauracje, szkoły, galeria handlowa, kino, pływalnia i siłownie oraz jezioro rusałka.
Dogodna komunikacja miejska zapewnia szybki dojazd do centrum.

Zapraszam na prezentacje inwestycji !

Do ceny należy doliczyć miejsce postojowe w hali garażowej - 35 000 PLN do 45 000 PLN
-- Opcjalnie komórka lokatorska w cenie 4 000 PLN/m2

MASZ PYTANIA ? ZADZWOŃ 7 dni w tygodniu w godzinach 8:00 - 21:00
Posiadam w ofercie także inne metraże oraz układy mieszkań z tej inwestycji !

Wojciech Gołębiowski - numer licencji zawodowej PPRN 24005

Phinance Nieruchomości

A jeśli zastanawiasz się nad kredytem czy ubezpieczeniem - z nami nie musisz szukać dalej. Wszystko załatwisz podczas jednego spotkania bezpłatnie, w pełni bezpiecznie i bez stresu !

Możliwość wykończenia już od 890 zł/m2 !

Rzut oraz wizualizacje w ofercie przedstawiają przykładowy sposób aranżacji wnętrza. Powyższa oferta ma charakter informacyjny i nie stanowi oferty handlowej w rozumieniu art. 66 §1 Kodeksu Cywilnego.

Adres strony www: https:// NULL

Plany Nieruchomości

Kontakt do opiekuna:

Phinance S.A.

Wojciech Gołębiowski
Nieprawidłowy adres E-mail
Mapa

Strona korzysta z plików cookie w celu realizacji usług zgodnie z Polityką prywatności. Możesz określić warunki przechowywania lub dostępu do cookie w Twojej przeglądarce.