Klimatyczne Jeżyce z pełną infrastrukturą

lokalizacja: Poznań

1 228 400,00 PLN

13 469,30 PLN

Opis nieruchomości

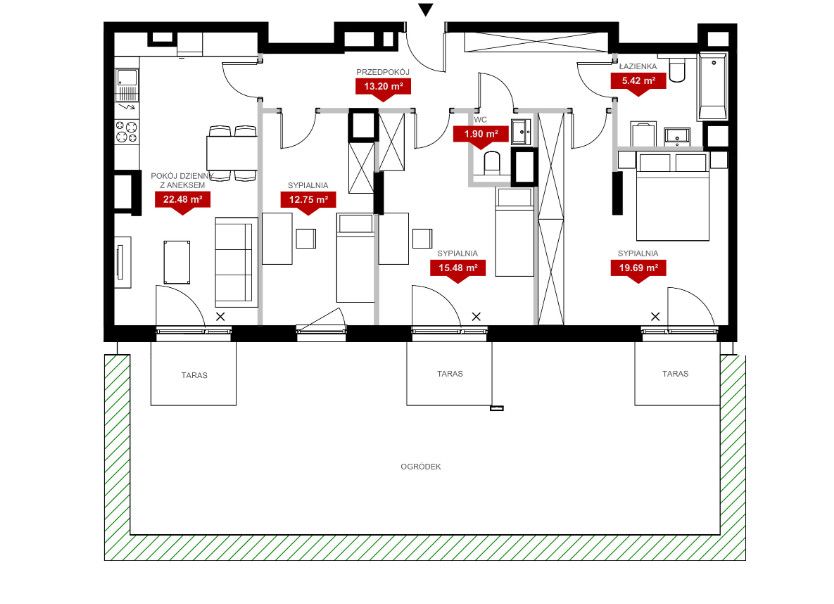
Nowe 4-pokojowe mieszkanie z ogrodem na Jeżycach - stan deweloperski, 91,2 m²!

0% PROWIZJI
BRAK PODATKU PCC
BEZPOŚREDNIO OD DEWELOPERA

Na sprzedaż przestronne mieszkanie o powierzchni 91,2 m², położone na parterze nowoczesnego budynku w jednej z najbardziej pożądanych dzielnic Poznania - Jeżyce.
Szczegóły nieruchomości:
• Powierzchnia: 91,2 m²
• Cena: 1 228 400 PLN
• Liczba pokoi: 4
• Piętro: parter
• Ogród: TAK - prywatna przestrzeń zielona do wypoczynku i rekreacji
• Stan: deweloperski - możliwość aranżacji wnętrz według własnych potrzeb
• Termin oddania inwestycji: III kwartał 2026
Lokalizacja:
Jeżyce to dzielnica, która łączy miejski klimat z bliskością terenów zielonych. W okolicy znajdują się:
• sklepy, restauracje, kawiarnie
• szkoły, przedszkola
• tereny spacerowe i parki
• świetna komunikacja z centrum miasta i innymi dzielnicami
Inwestycja:
Nowoczesna architektura, wysoki standard wykończenia części wspólnych oraz kameralna zabudowa gwarantują komfort i prywatność.
To idealna propozycja dla rodzin, par szukających większej przestrzeni, jak również jako inwestycja pod wynajem.

Zapraszam do kontaktu i prezentacji lokalu!
Maja Strugarek
Doradca ds Nieruchomości
574-171-760
„Niniejsze ogłoszenie nie stanowi oferty w rozumieniu przepisów kodeksu cywilnego a przedstawione wizualizacje, zdjęcia oraz plany mają charakter poglądowy”

Adres strony www: https:// NULL

Kontakt do opiekuna:

Phinance S.A.

Maja Strugarek
Nieprawidłowy adres E-mail
Mapa

Strona korzysta z plików cookie w celu realizacji usług zgodnie z Polityką prywatności. Możesz określić warunki przechowywania lub dostępu do cookie w Twojej przeglądarce.