Bochnia mieszkanie na poddaszu o pow. 55,65 m2

lokalizacja: Bochnia

399 000,00 PLN

7 169,81 PLN

Opis nieruchomości

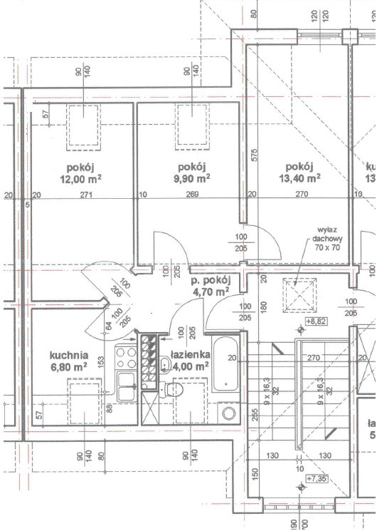
Bochnia mieszkanie na poddaszu o  powierzchni całkowitej 55,65  m² (użytkowej 47,55  m²)  w bloku trzypiętrowym, wybudowanym w latach 2009-2010. Do lokalu przynależy piwnica o powierzchni 8,1 m2 .
Mieszkanie składa się z:
trzech pokoi (jeden z tradycyjnym oknem, dwa z oknami dachowymi)
kuchni,
łazienki z oknem dachowym,
przedpokoju.
Atuty nieruchomości
przestronna piwnica 8,1 m2 
funkcjonalny układ pomieszczeń,
jasne wnętrza dzięki oknom dachowym,
Lokalizacja

Osiedle oddalone ok. 2 km od centrum miasta, z bardzo dobrą infrastrukturą w pobliżu. W zasięgu spaceru: sklepy, żłobek, przedszkole, szkoła oraz przystanki komunikacji miejskiej. Spokojna i bezpieczna okolica sprzyja rodzinom z dziećmi.

Cena: 399   000 złotych 

Bochnia mieszkanie na poddaszu o powierzchni całkowitej 55,65 m² (użytkowej 47,55 m²) w bloku trzypiętrowym, wybudowanym w latach 2009-2010. Do lokalu przynależy piwnica o powierzchni 8,1 m2 .
Mieszkanie składa się z:
trzech pokoi (jeden z tradycyjnym oknem, dwa z oknami dachowymi)
kuchni,
łazienki z oknem dachowym,
przedpokoju.
Atuty nieruchomości
przestronna piwnica 8,1 m2
funkcjonalny układ pomieszczeń,
jasne wnętrza dzięki oknom dachowym,
Lokalizacja

Osiedle oddalone ok. 2 km od centrum miasta, z bardzo dobrą infrastrukturą w pobliżu. W zasięgu spaceru: sklepy, żłobek, przedszkole, szkoła oraz przystanki komunikacji miejskiej. Spokojna i bezpieczna okolica sprzyja rodzinom z dziećmi.

Cena: 470 000 zł -do negocjacji

Adres strony www: https:// NULL

Kontakt do opiekuna:

Phinance S.A.

Joanna Marszycka-Wolek
Nieprawidłowy adres E-mail
Mapa

Strona korzysta z plików cookie w celu realizacji usług zgodnie z Polityką prywatności. Możesz określić warunki przechowywania lub dostępu do cookie w Twojej przeglądarce.