Malaga, Costa del Sol apartament 94 m2 po remoncie

lokalizacja: Malaga

1 104 000,00 PLN

11 744,68 PLN

Opis nieruchomości

Hiszpania, Malaga, apartament 94 m2, po generalnym remoncie.

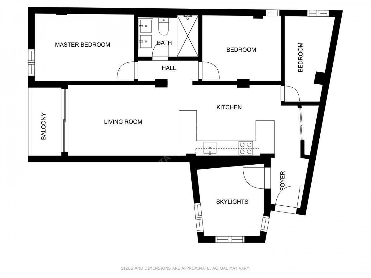
Na sprzedaż przestronny, całkowicie odnowiony apartament o powierzchni 94 m², położony w komfortowej i spokojnej okolicy, zaledwie kilka minut pieszo od zabytkowego centrum Málagi.
Mieszkanie znajduje się na 1. piętrze siedmiokondygnacyjnego budynku.


W skład nieruchomości wchodzą:

  • jasny salon połączony z balkonem o wschodniej ekspozycji,

  • nowoczesna kuchnia,

  • 3 sypialnie,

  • elegancka łazienka w układzie „Jack & Jill” z podwójną umywalką i dwoma natryskami.


 

Mieszkanie przeszło generalny remont — wymieniono instalacje elektryczne i hydrauliczne, zamontowano nowe drzwi i okna oraz wysokiej jakości wykończenia podłóg. Dzięki temu lokal jest gotowy do zamieszkania bez dodatkowych nakładów.
Okolica oferuje tradycyjny, hiszpański klimat, a w pobliżu znajdują się sklepy, punkty usługowe oraz siłownia.


Cena: 1.104.000 PLN
Ceną bazową jest kwota 230.000 EUR netto, do której należy doliczyć VAT oraz opłaty transakcyjne.



Agent nieruchomości zawodowo działający na rynku pośrednictwa pobiera wynagrodzenie za swoje czynności.

 

Kontakt do opiekuna:

Phinance S.A.

Marek Zimoch
Nieprawidłowy adres E-mail
Mapa

Strona korzysta z plików cookie w celu realizacji usług zgodnie z Polityką prywatności. Możesz określić warunki przechowywania lub dostępu do cookie w Twojej przeglądarce.