Trzypokojowe | Kraków | Wysoki Parter po remoncie

lokalizacja: Kraków

849 000,00 PLN

15 250,58 PLN

Opis nieruchomości

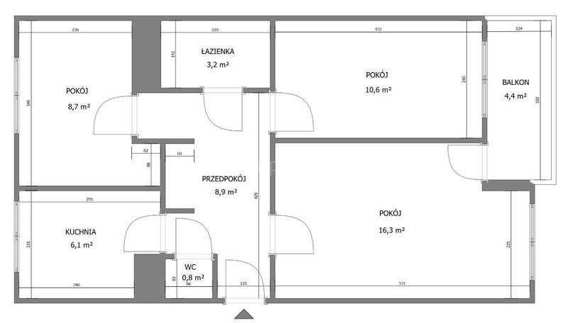
Mieszkanie trzypokojowe na podwyższonym parterze dwustronne z kuchnią, balkonem i piwnicą.

Zdjęcia przedstawiają aktualny stan mieszkania, które przeszło gruntowny remont (nowa łazienka, kuchnia wraz z agd - lodówka, zmywarka, płyta gazowa, piekarnik, sprzęty nieużywane, na gwarancji).

Zgodnie z KW mieszkanie ma 55,67 m2

Dwa pokoje świeżo umeblowane, trzeci pozostaje do aranżacji nowego właściciela zgodnie z potrzebami.

Mieszkanie gotowe do wejścia.

Możliwość parkowania samochodu przed mieszkaniem (parking wyłącznie do użytku mieszkańców).

Plan Nieruchomości

Kontakt do opiekuna:

Phinance S.A.

Mateusz Pielech
Nieprawidłowy adres E-mail
Mapa

Strona korzysta z plików cookie w celu realizacji usług zgodnie z Polityką prywatności. Możesz określić warunki przechowywania lub dostępu do cookie w Twojej przeglądarce.