Gotowe PKM ogródek zachód 39m2 balkon i taras

lokalizacja: Gdańsk

579 000,00 PLN

14 980,60 PLN

Opis nieruchomości

Mieszkanie w atrakcyjnej, dobrze skomunikowanej części Gdańska, blisko PKM Kiełpinek, Auchan i terenów zielonych.

NAJWAŻNIEJSZE INFORMACJE
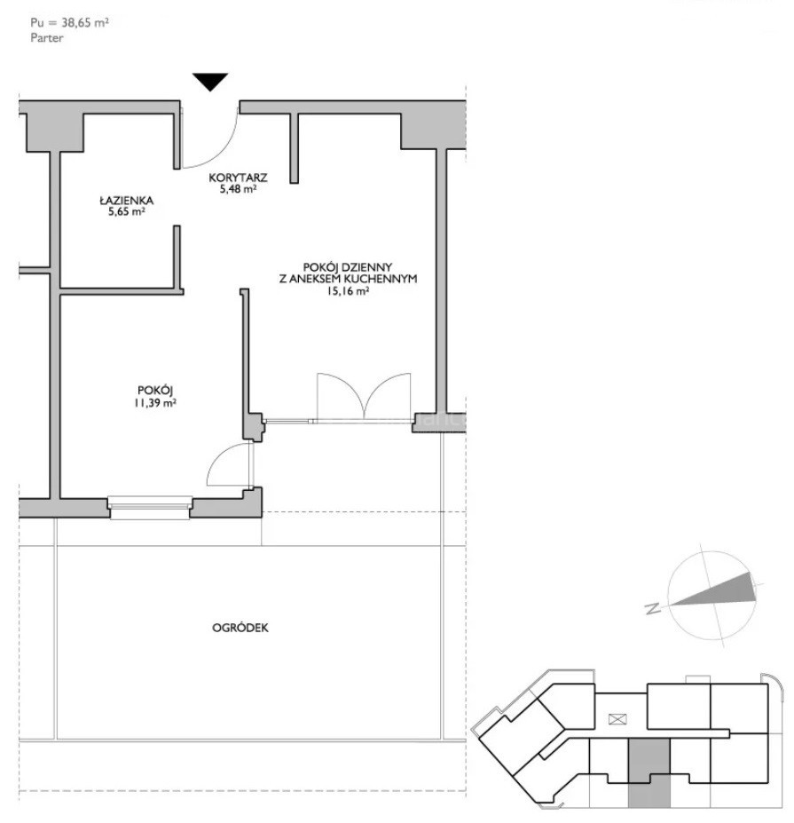
• Powierzchnia użytkowa: 38,65 m²
• Piętro: Parter
• Liczba pokoi: 2
• Status: Gotowe do odbioru
• Stan: Deweloperski
• Miejsce garażowe podziemne x 1 w cenie
• Cena łączna (brutto): 577 282 PLN

OPIS MIESZKANIA
Przytulne, funkcjonalne mieszkanie 2 pokojowe zaprojektowane z myślą o komforcie codziennego życia. Jasny pokój dzienny z aneksem kuchennym i bezpośrednim wyjściem do ogródka tworzy naturalne przedłużenie strefy dziennej - idealne do relaksu i spotkań. Układ mieszkania jest ergonomiczny, z wyraźnym podziałem na część dzienną i sypialnianą.

ROZKŁAD I METRAŻE
• Pokój dzienny z aneksem kuchennym: 15,16 m²
• Pokój (sypialnia): 11,39 m²
• Łazienka: 5,65 m²
• Korytarz: 5,48 m²
• Balkon/Taras: 4,5 m²
• Ogródek bezpośrednio przyległy do mieszkania: 22 m²

DLACZEGO WARTO
• Gotowe do zamieszkania - brak oczekiwania na odbiór.
• Parter z ogródkiem - wygoda i dodatkowa przestrzeń na świeżym powietrzu.
• Przemyślany układ i ponadstandardowe okna zapewniają dobre doświetlenie wnętrz.
• Położenie osiedla na trasie Pomorskiej Kolei Metropolitalnej stanowi unikatowy atut wśród trójmiejskich inwestycji mieszkaniowych.

CENA I WARUNKI SPRZEDAŻY
- Nie płacisz PCC.
- Nie płacisz prowizji.
- Cena podana brutto.
- W razie zainteresowania przygotuję pełną kalkulację kosztów oraz dokumentację techniczną mieszkania. Możliwość prezentacji lokalu po wcześniejszym umówieniu terminu.

FINANSOWANIE
Phinance S.A. od: dekad ubezpieczenia, doradztwo finansowo - kredytowe - to nasza pasja i specjalizacja. Bardzo mile Was zaskoczymy - zapytajcie o kredyt hipoteczny.

ZAPRASZAM
Dowiedzą się Państwo o LIMITOWANEJ OFERCIE. Obejrzycie potencjalnie przyszłe mieszkanie na żywo. Zdecydujecie co dalej.
Do zobaczenia,
Adam Leks, kom: 604 626 212, e-mail: Adam.Leks@Phinance.pl

Wizualizacje mają charakter poglądowy i nie stanowią elementu oferty w rozumieniu art. 66 Kodeksu cywilnego.
Mieszkanie sprzedawane jest w stanie deweloperskim.

Plan Nieruchomości

Kontakt do opiekuna:

Phinance S.A.

Adam Leks
Nieprawidłowy adres E-mail
Mapa

Strona korzysta z plików cookie w celu realizacji usług zgodnie z Polityką prywatności. Możesz określić warunki przechowywania lub dostępu do cookie w Twojej przeglądarce.