Prestiżowy dom 257m² Gdańsk,Kartuska 300

lokalizacja: Gdańsk, Kartuska

2 799 000,00 PLN

10 885,97 PLN

Opis nieruchomości

Przed Państwem wyjątkowa okazja do zamieszkania w jednej z najbardziej pożądanych lokalizacji Trójmiasta.
Prezentujemy dom w zabudowie szeregowej-segment skrajny o powierzchni całkowitej 257,12m² w nowoczesnej, kameralnej inwestycji Kartuska 300.

15 minut od starego miasta i Galerii Bałtyckiej


Dom: Sztuka Nowoczesnego Budownictwa i Przemyślanej Przestrzeni

Ten dom to kwintesencja rynku premium - zarówno pod względem projektu, jak i wykonania. Oferuje 257,12 m² powierzchni całkowitej, inteligentnie rozdzielonej na trzy funkcjonalne kondygnacje, które tworzą harmonijną i przestronną całość.

Garaż i piwnica (82,91 m²): przestronny, dwustanowiskowy garaż to nie tylko miejsce na auto, ale i gwarancja wygody. Na tym poziomie znajduje się także nowoczesne pomieszczenie gospodarcze, w którym zlokalizowano wysokiej klasy pompę ciepła i rekuperator - gwarantujące niskie koszty eksploatacji i stały dopływ świeżego, filtrowanego powietrza przez cały rok.

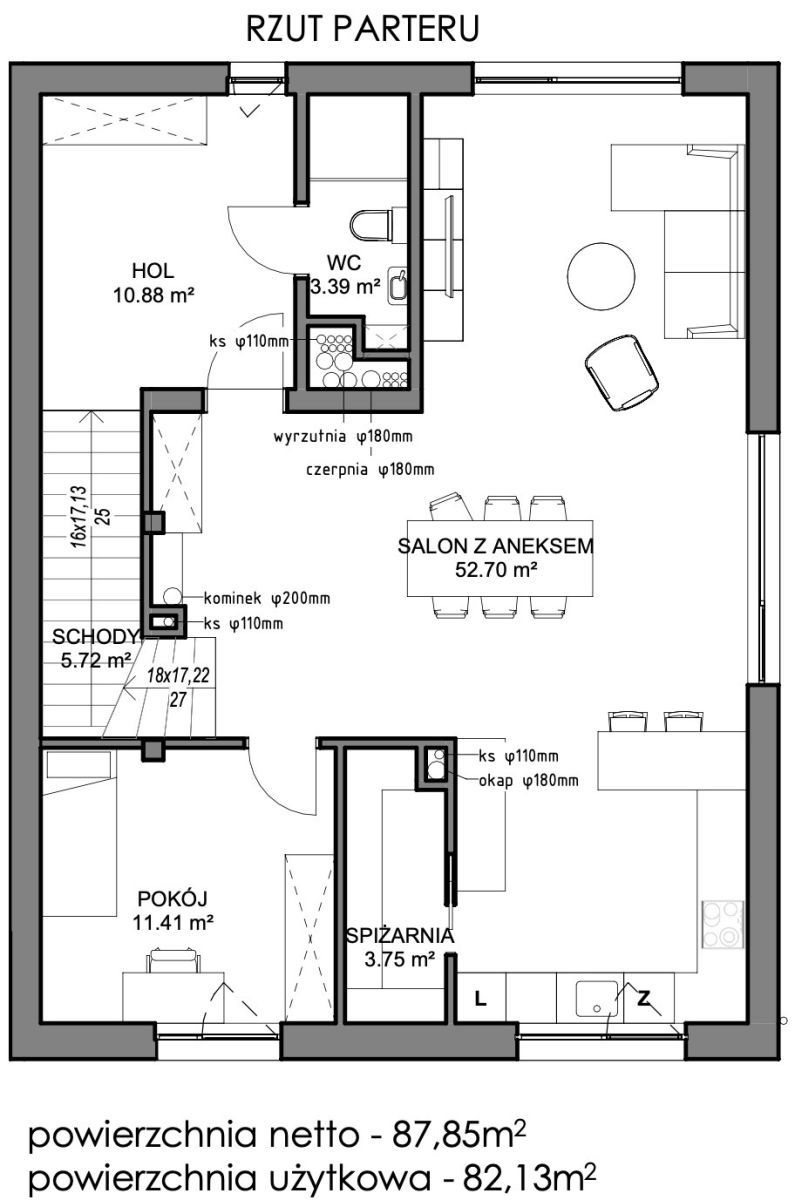
Parter (87,85 m²): wejście przez przestronny wiatrołap prowadzi do olśniewającej, otwartej przestrzeni dziennej. Przestronny salon z dużym aneksem kuchennym i spiżarnią (łącznie 52,70 m²) tworzy idealne miejsce zarówno dla rodzinnych spotkań, jak i przyjęć w gronie przyjaciół. Na tej kondygnacji znajduje się także łazienka.Tu również znajdziesz pomieszczenie idealne na gabinet lub sypialnię dla gości.

Pierwsze piętro (86,37 m²): ta kondygnacja jest sferą prywatną. Składa się z pięciu komfortowych sypialni (o pow. 11,48 m², 11,87 m² i 15,71, 15,56 m², 9,62 m²) oraz dóch przestronnych łazienek (4,31 m² i 3,83 m²), zapewniającej intymność i wypoczynek wszystkim domownikom.

To więcej niż dom, to fundament pod Twój wygodny styl życia.

Dodatkowe atuty podkreślające wyjątkowość nieruchomości:

Słoneczna działka (647 m²)
Sąsiedztwo: kameralny charakter inwestycji i podobny standard zabudowy przyciągają wymagających, spokojnych mieszkańców, co gwarantuje wyjątkową atmosferę miejsca.

Idealna lokalizacja: zamknięta, spokojna enklawa w sercu nowoczesnej i doskonale skomunikowanej dzielnicy. Kilka minut dzieli Cię od obwodnicy Trójmiasta, a zaledwie 3,5 km od ścisłego centrum Gdańska i Galerii Forum. Całe otoczenie oferuje pełne, nowoczesne zaplecze handlowo-usługowe.

Kompleksowe Wsparcie w Zakupie Twojego Domu
Dla naszych Klientów przygotowaliśmy bezpłatną, ekspercką pomoc w uzyskaniu optymalnego finansowania. Dzięki współpracy ze wszystkimi bankami komercyjnymi, zapewniamy dostęp do najlepszych ofert rynkowych. Nasi doradcy nie tylko zabiegają o najkorzystniejsze warunki kredytu, ale także, w razie potrzeby, profesjonalnie pomogą zbudować i udokumentować solidną zdolność kredytową pod zakup tej konkretnej nieruchomości.

Skontaktuj się, aby umówić się na prezentację inwestycji w trakcie powstawania.

Plany Nieruchomości

Kontakt do opiekuna:

Phinance S.A.

Elżbieta Rodak
Nieprawidłowy adres E-mail
Mapa

Strona korzysta z plików cookie w celu realizacji usług zgodnie z Polityką prywatności. Możesz określić warunki przechowywania lub dostępu do cookie w Twojej przeglądarce.