Wyższy standard w świetnej lokalizacji

lokalizacja: Gdańsk

1 990 000,00 PLN

10 830,52 PLN

Opis nieruchomości

Przestawiam Państwu dom jednorodzinny w zabudowie szeregowej w Gdańsku dzielnicy Ujeścisku-Łostowice.
Inwestycja Olchowa Dolina to nowoczesne osiedle 6 domów jednorodzinnych wolnostojących oraz 15 domów jednorodzinnych w zabudowie szeregowej, stanowiących zaciszną i elegancką enklawę w ruchliwym mieście. 

Lokalizacja:
Domy usytuowano wzdłuż własnego wewnętrznego układu komunikacyjnego w odległości zaledwie kliku kilometrów od ścisłego śródmieścia Gdańska, przy ul. Olchowej. Komunikacja z najdłuższą ulicą Gdańska Kartuską sprawia, że do centrum, obwodnicy i w każdą inną stronę miasta mamy zaledwie parę kilometrów. Cała okolica ma pełne zaplecze handlowo-usługowe. Do galerii Forum jest 3,5 km. Do obwodnicy zaledwie kilka minut.

Dom:
Zarówno projekt jak i wykonanie to rynek premium. Powierzchnia całkowita to 183.74 m2, powierzchnia użytkowa 109.00 m2 (powierzchnia garażu i piwnicy nie jest wliczona).
Całość podzielona na 3 kondygnacje: garaż dwustanowiskowy o powierzchni 58,70m2, wysoki parter o powierzchni 63,8 m2 oraz pierwsze piętro o powierzchni 61,66 m2.

Garaż/piwnica: hol 2,91 m2, garaż 47,38m2, pomieszczenie techniczne 8,40m2. W pomieszczeniu technicznym znajduje się pompa ciepła i rekuperator.

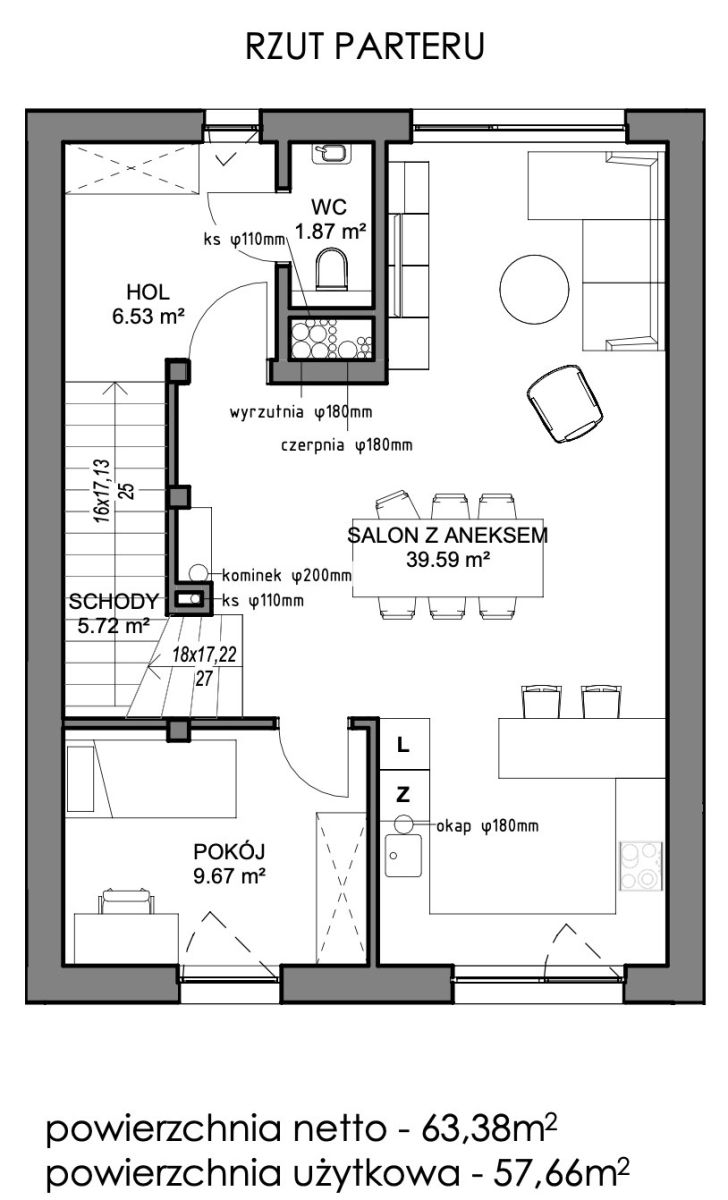
Parter: salon z aneksem kuchennym 39,59 m2, hol 6,53m2, pokój 9,67 m2, WC 1,87m2, schody 5,72 m2

1 piętro: pokoje (11,59m2, 11,68m2, 11,33m2), dwie łazienki (4,23m2 oraz 7,87m2), garderoba 3,86m2, hol 6m2 oraz schody 5,10m2.

Powierzchnia działki to 353m2. Dom ma ekspozycję na dwie strony świata: południowa z akcentem zachodnim oraz północna z akcentem wschodnim - jest dużo słońca. Cała okolica jest cicha i ma spokojnych sąsiadów w podobnym budownictwie.

Finansowanie:
Pomagamy w pełnym finansowaniu naszym klientom. Współpracujemy ze wszystkimi bankami komercyjnymi i mamy dostęp do najlepszych rynkowych ofert. Doradzimy nie tylko w najlepszym finansowaniu, ale w razie zainteresowania pomożemy zbudować solidną zdolność pod zakup konkretnego domu - wszystko bezpłatnie!

Pomagam również w kredycie hipotecznym - jestem licencjonowanym doradcą kredytowym.
Zapraszam na spotkanie!

Kontakt do opiekuna:

Phinance S.A.

Krystian Sukiennik
Nieprawidłowy adres E-mail
Mapa

Strona korzysta z plików cookie w celu realizacji usług zgodnie z Polityką prywatności. Możesz określić warunki przechowywania lub dostępu do cookie w Twojej przeglądarce.