Dom Szeregowy | Gdańsk | Działka 234 m² | Garaż

lokalizacja: Gdańsk

1 920 000,00 PLN

13 031,97 PLN

Opis nieruchomości

Na sprzedaż nowoczesny dom jednorodzinny w zabudowie szeregowej, położony w kameralnej inwestycji Olchowa Dolina V w Gdańsku. Nieruchomość oferuje:



  • Działka: 234 m²

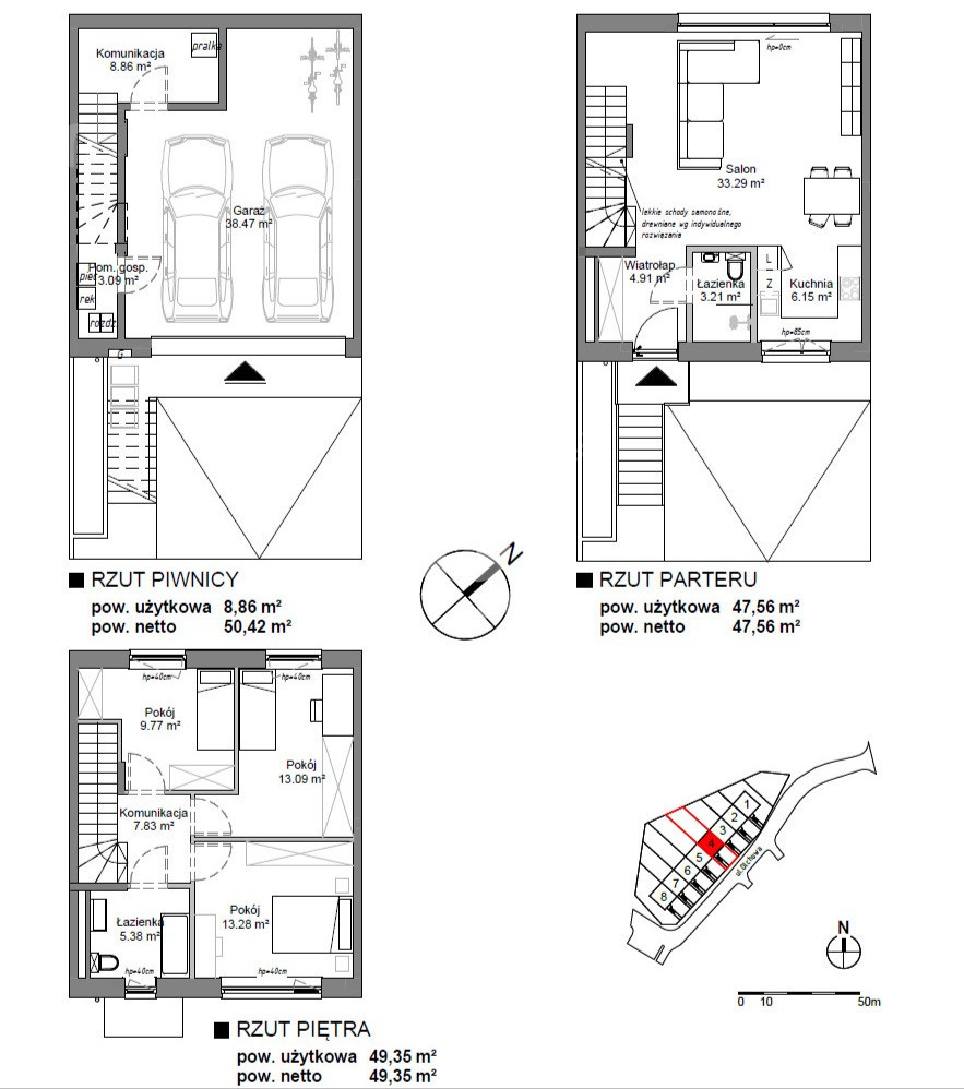
  • Powierzchnia całkowita: 147,33 m²

  • Powierzchnia użytkowa: 105,77 m²

  • Garaż na dwa samochody: 38,47 m²


Dom został zaprojektowany z myślą o wygodnym życiu rodziny. Na parterze znajduje się przestronny salon z aneksem kuchennym, łazienka oraz wiatrołap.
Na piętrze zaplanowano trzy ustawne pokoje i drugą łazienkę.



Olchowa Dolina V to kameralna inwestycja obejmująca 8 domów w zabudowie szeregowej. Inwestycja znajduje się zaledwie kilka kilometrów od ścisłego śródmieścia Gdańska, co pozwala połączyć codzienny komfort życia w spokojnym otoczeniu z szybkim dojazdem do miasta.

Nieruchomość będzie oddana w standardzie deweloperskim. W części mieszkalnej przewidziano wentylację mechaniczną z rekuperacją, piec gazowy dwufunkcyjny do ogrzewania i ciepłej wody użytkowej, a także bramę garażową sterowaną elektrycznie. Dom będzie podłączony do sieci miejskich, co zwiększa wygodę użytkowania i bezpieczeństwo inwestycji.

Zapraszam do kontaktu i umówienia się na prezentację. Kupujący nie płaci prowizji.


https://nieruchomosci.phinance.pl/inwestycja/olchowa-dolina-v-53987/


Domy w inwestycji: (powierzchnia/powierzchnia działki/ cena ofertowa/dostępność)
1 szeregowy 147.33 m² /213 m² / 1 890 000 zł / Rezerwacja
2 szeregowy 147.33 m²/188 m² / 1 850 000 zł/ Rezerwacja
3 szeregowy 147.33 m² /211 m² / 1 880 000 zł / Wolne
4 szeregowy 147.33 m² /234 m² /1 920 000 zł / Wolne
5 szeregowy 147.33 m² /257 m² / 1 940 000 zł / Wolne
6 szeregowy 147.33 m² /258 m² / 1 940 000 zł / Wolne
7 szeregowy 147.33 m² /224 m² / 1 910 000 zł / Wolne
8 szeregowy 147.33 m² /284 m² / 1 990 000 zł / Rezerwacja

Kontakt do opiekuna:

PHINANCE S.A.

Kacper Michałek
Nieprawidłowy adres E-mail
Mapa

Strona korzysta z plików cookie w celu realizacji usług zgodnie z Polityką prywatności. Możesz określić warunki przechowywania lub dostępu do cookie w Twojej przeglądarce.