✨ Luksus i komfort w sercu Trójmiasta
Prezentuję Państwu ekskluzywny dom jednorodzinny w prestiżowej inwestycji Olchowa Dolina, Osiedle to stanowi zaciszną i elegancką enklawę w ruchliwym mieście, oferując mieszkańcom spokój oraz bliskość natury.
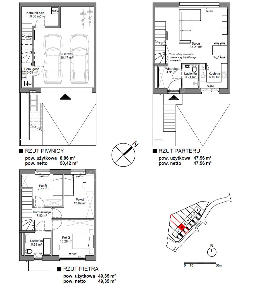
Kluczowe informacje:
Powierzchnia użytkowa: 105,77m²
Powierzchnia użytkowa parteru: 47,56m²
Powierzchnia użytkowa piętra: 49,35m²
Powierzchnia użytkowa garażu: 38,47m²
? Układ pomieszczeń:
Parter: przestronny salon z wyjściem na ogród, otwarta kuchnia, łazienka
Piętro: 3 sypialnie, łazienka,
Piwnica: garaż dwustanowiskowy, pomieszczenia gospodarcze
Domy w Olchowej Dolinie charakteryzują się nowoczesnym stylem, łączącym komfort i elegancję.
? Lokalizacja:
Inwestycja zlokalizowana jest przy ul. Olchowej w Gdańsku. W pobliżu znajdują się sklepy, punkty usługowe, szkoły, przedszkola oraz przystanki komunikacji miejskiej, zapewniając mieszkańcom pełen komfort życia codziennego.
? Bliskość natury:
W niedalekim sąsiedztwie znajduje się Trójmiejski Park Krajobrazowy, będący doskonałym miejscem wędrówek pieszych i rowerowych, idealnym dla miłośników aktywnego wypoczynku na świeżym powietrzu.
Jeśli są Państwo zainteresowani tą wyjątkową ofertą, zapraszamy do kontaktu w celu uzyskania dodatkowych informacji oraz umówienia się na prezentację nieruchomości.
dom premium w olchowej dolinie
lokalizacja: Gdańsk
1 940 000,00 PLN
13 167,72 PLN
Dane szczegółowe
- Typ transakcji: sprzedaż
- Typ nieruchomości: Dom
- Lokalizacja: Gdańsk Ujeścisko
- Powierzchnia:147,33 m2
- Liczba pokoi: 4
- Liczba pięter: 2
-
Powierzchnia działki:
258 m2
- Numer oferty: 388579
- Cena: 1 940 000,00 PLN
- Cena za m2: 13 167,72 PLN
Opis nieruchomości
Kontakt do opiekuna:
Phinance S.A.