dom deweloperski standard premium

lokalizacja: Gdańsk

1 920 000,00 PLN

13 031,97 PLN

Opis nieruchomości

Przedstawiam Państwu dom w stanie deweloperskim na osiedlu Olchowa dolina, które gwarantuje spokój, bliskość natury przy jednoczesnym szybkim dojeździe do obwodnicy i centrum 

GDAŃSK, Ujeścisko-Łostowice
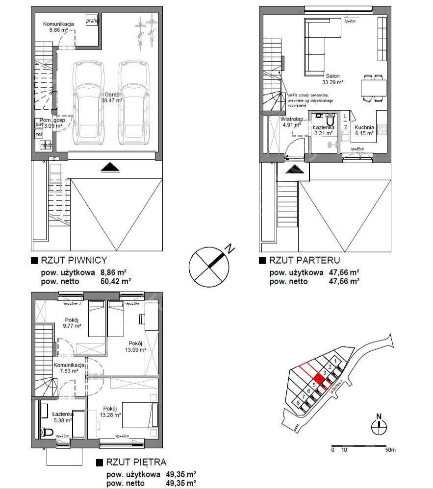
Powierzchnia użytkowa: 105,77m²
Powierzchnia użytkowa parteru: 47,56m²
Powierzchnia użytkowa piętra: 49,35m²

Działka: 234m²
Cena: 1 920 000 zł brutto

NIERUCHOMOŚĆ:

Na sprzedaż dom w zabudowie szeregowej, położony w dobrze skomunikowanej i spokojnej części ujeściska w Gdańsku, kilkaset metrów od ul. Kartuskiej

UKŁAD POMIESZCZEŃ:

Garaż podziemny:
- Miejsca na dwa auta
- Pomieszczenie gospodarcze

Parter:
- Przestronny salon z wyjściem na taras i ogród
- Salon z kuchnią
- Łazienka
- Przedpokój

Piętro:
- 3 sypialnie
- Łazienka

WYKOŃCZENIE

Stan deweloperski premium
- żelbet + bloczki Silka (świetna izolacja akustyczna)
- dach płaski, elewacja z cegły ryflowanej
- ocieplenie: styropian 20 cm
- rekuperacja + pompa ciepła lub piec gazowy
- okna PVC U=1,1 | brama segmentowa elektryczna

Wnętrze gotowe do wykończenia
- tynki gipsowe maszynowe
- wylewki betonowe
- instalacja elektryczna, wod.-kan., RTV
- pełne przyłącza miejskie (gaz, prąd, woda, kanalizacja)

DZIAŁKA I OTOCZENIE
- ogrodzenie boczne, podjazd z kostki
- spokojna, zielona okolica
- szybki dojazd do centrum i obwodnicy

LOKALIZACJA:
- Bliskość szkół, przedszkoli, sklepów, punktów usługowych
- Doskonała komunikacja z centrum miasta (autobus, tramwaj, kolej podmiejska)
- W sąsiedztwie tereny zielone, parki, ścieżki rowerowe


—————— Szczegóły techniczne ———————

Standard wykończenia:

Konstrukcja:
- Fundamenty, ściany, schody - żelbeton i bloczki silikatowe (bardzo dobra izolacja akustyczna)
- Ściany działowe murowane z bloczków SILKA o grubości 8 lub 12 cm.

Dach:
- Pokrycie dachu płaskiego: papa termozgrzewalna modyfikowana - nawierzchniowa i podkładowa,
- izolacja termiczna - styropian spadkowy mocowany mechanicznie do podłoża
- Folia paroizolacyjna
- Opierzenia blacharskie z blachy powlekanej w kolorze RAL

Elewacja:
- wykończona w kolorze naturalnej cegły ryflowanej z izolacją termiczną wykonaną metodą lekko-mokrą z ociepleniem styropianem gr. 20 cm,
- części międzyokienne i cokołowe w systemie wentylowanym z okładziną panelową w kolorze grafitowym,
- parapety zewnętrzne z blachy powlekanej kolor RAL

Wykończenie wewnętrzne:
- ściany piwnicy: surowe żelbetowe lub tynkowane tynkiem cementowo-wapiennym,
- ściany parteru, piętra oraz stropy: tynki gipsowe mokre maszynowe,
- podłogi w pokojach, łazience, kuchni i holu- podłoże betonowe pod posadzki.

Brama garażowa sterowana elektrycznie

wentylacja:
- w części mieszkalnej - mechaniczna z rekuperacją - rozprowadzona kanałami do pomieszczeń,
- w części piwnicy i garażu grawitacyjna.

instalacja elektryczna:
- moc przyłączeniowa 12,5 kW,

instalacja grzewcza - pompa ciepła lub piec gazowy dwufunkcyjny (ogrzewanie + CWU), grzejniki panelowe z zaworami termostatycznymi zasilane z posadzki, białe.


KONTAKT:
? Zadzwoń już dziś i umów się na prezentację!
? aniela.szczepkowska@phinance.pl
? 533548980

Kontakt do opiekuna:

Phinance S.A.

Krystian Sukiennik
Nieprawidłowy adres E-mail
Mapa

Strona korzysta z plików cookie w celu realizacji usług zgodnie z Polityką prywatności. Możesz określić warunki przechowywania lub dostępu do cookie w Twojej przeglądarce.