dom z ogródkiem na ujeścisku

lokalizacja: Gdańsk

1 880 000,00 PLN

12 760,47 PLN

Opis nieruchomości

Przedstawiam Państwu wyjątkowy dom w zabudowie szeregowej 

Osiedle olchowa dolina znajduje się 10 min od centrum gdańska, mimo bliskości ulicy kartuskiej jest tam cicho i spokojnie, idealne miejsce dla rodzin. 

GDAŃSK, Ujeścisko-Łostowice
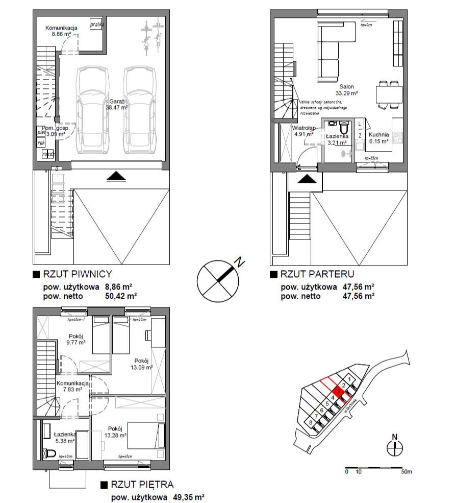
Powierzchnia użytkowa: 105,77m²
Powierzchnia użytkowa parteru: 47,56m²
Powierzchnia użytkowa piętra: 49,35m²
+ garaż z pomieszczeniem gospodarczym 8,86m²
Działka: 211m²
Cena: 1 880 000 zł brutto

NIERUCHOMOŚĆ:

Na sprzedaż dom w stanie deweloperskim w zabudowie szeregowej, położony w dobrze skomunikowanej i spokojnej części ujeściska w Gdańsku, kilkaset metrów od ul. Kartuskiej. Idealny dla rodziny ceniącej wygodę, nowoczesność i bliskość natury, przy jednoczesnym dostępie do pełnej infrastruktury miejskiej.

UKŁAD POMIESZCZEŃ:

Garaż podziemny:
- Miejsca na dwa auta
- Pomieszczenie gospodarcze

Parter:
- Przestronny salon z wyjściem na taras i ogród
- Salon z kuchnią
- Łazienka
- Przedpokój

Piętro:
- 3 sypialnie
- Łazienka

Stan deweloperski premium
- żelbet + bloczki Silka (świetna izolacja akustyczna)
- dach płaski, elewacja z cegły ryflowanej
- ocieplenie: styropian 20 cm
- rekuperacja + pompa ciepła lub piec gazowy
- okna PVC U=1,1 | brama segmentowa elektryczna

Wnętrze gotowe do wykończenia
- tynki gipsowe maszynowe
- wylewki betonowe
- instalacja elektryczna, wod.-kan., RTV
- pełne przyłącza miejskie (gaz, prąd, woda, kanalizacja)

DZIAŁKA I OTOCZENIE
- ogrodzenie boczne, podjazd z kostki
- spokojna, zielona okolica
- szybki dojazd do centrum i obwodnicy

LOKALIZACJA:
- Bliskość szkół, przedszkoli, sklepów, punktów usługowych
- Doskonała komunikacja z centrum miasta (autobus, tramwaj, kolej podmiejska)
- W sąsiedztwie tereny zielone, parki, ścieżki rowerowe

Pomagam również w kredycie hipotecznym - jestem licencjonowanym doradcą kredytowym.
Zapraszam na spotkanie!

Kontakt do opiekuna:

Phinance S.A.

Krystian Sukiennik
Nieprawidłowy adres E-mail
Mapa

Strona korzysta z plików cookie w celu realizacji usług zgodnie z Polityką prywatności. Możesz określić warunki przechowywania lub dostępu do cookie w Twojej przeglądarce.