dom z ogródkiem 10min od centrum

lokalizacja: Gdańsk

1 850 000,00 PLN

12 585,03 PLN

Opis nieruchomości

Przedstawiam Państwu wyjątkowy dom w zabudowie szeregowej - komfort, styl i doskonała lokalizacja!

GDAŃSK, Ujeścisko-Łostowice
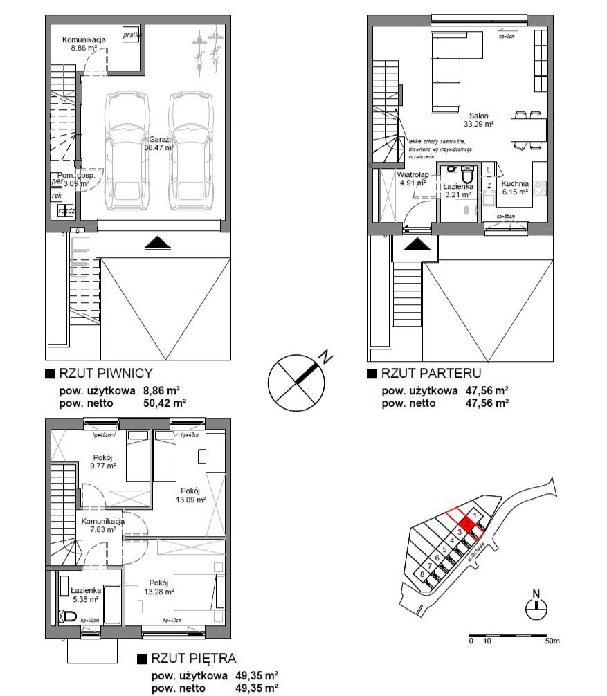
powierzchnia całkowita to 147,33m² 
Powierzchnia użytkowa: 105,77m² (powierzchnia garażu nie jest wliczona)
parter: 47,56m²
piętro: 49,35m²
garaż: 50,42m²
Działka: 188m²
Cena: 1 850 000 zł brutto

NIERUCHOMOŚĆ:

Na sprzedaż dom z rynku deweloperskiego premium w zabudowie szeregowej, położony w dobrze skomunikowanej i spokojnej części ujeściska w Gdańsku, kilkaset metrów od ul. Kartuskiej. Idealny dla rodziny ceniącej wygodę, nowoczesność i bliskość natury, przy jednoczesnym dostępie do pełnej infrastruktury miejskiej.

Dom został zaprojektowany z myślą o funkcjonalności, oszczędności i estetyce. Przestronne wnętrza, rekuperacja oraz nowoczesne wykończenie to tylko część jego atutów.

UKŁAD POMIESZCZEŃ:

Garaż podziemny:
- Miejsca na dwa auta
- Pomieszczenie gospodarcze

Parter:
- Przestronny salon z wyjściem na taras i ogród
- Salon z kuchnią
- Łazienka
- Przedpokój

Piętro:
- 3 sypialnie
- Łazienka

WYKOŃCZENIE

Stan deweloperski premium
- żelbet + bloczki Silka (świetna izolacja akustyczna)
- dach płaski, elewacja z cegły ryflowanej
- ocieplenie: styropian 20 cm
- rekuperacja + pompa ciepła lub piec gazowy
- okna PVC U=1,1 | brama segmentowa elektryczna

Wnętrze gotowe do wykończenia
- tynki gipsowe maszynowe
- wylewki betonowe
- instalacja elektryczna, wod.-kan., RTV
- pełne przyłącza miejskie (gaz, prąd, woda, kanalizacja)

DZIAŁKA I OTOCZENIE
- ogrodzenie boczne, podjazd z kostki
- spokojna, zielona okolica
- szybki dojazd do centrum i obwodnicy

LOKALIZACJA:
- Bliskość szkół, przedszkoli, sklepów, punktów usługowych
- Doskonała komunikacja z centrum miasta (autobus, tramwaj, kolej podmiejska)
- W sąsiedztwie tereny zielone, parki, ścieżki rowerowe


—————— Szczegóły techniczne ———————

Standard wykończenia:

Konstrukcja:
- Fundamenty, ściany, schody - żelbeton i bloczki silikatowe (bardzo dobra izolacja akustyczna)
- Ściany działowe murowane z bloczków SILKA o grubości 8 lub 12 cm.

Dach:
- Pokrycie dachu płaskiego: papa termozgrzewalna modyfikowana - nawierzchniowa i podkładowa,
- izolacja termiczna - styropian spadkowy mocowany mechanicznie do podłoża
- Folia paroizolacyjna
- Opierzenia blacharskie z blachy powlekanej w kolorze RAL

Elewacja:
- wykończona w kolorze naturalnej cegły ryflowanej z izolacją termiczną wykonaną metodą lekko-mokrą z ociepleniem styropianem gr. 20 cm,
- części międzyokienne i cokołowe w systemie wentylowanym z okładziną panelową w kolorze grafitowym,
- parapety zewnętrzne z blachy powlekanej kolor RAL

Wykończenie wewnętrzne:
- ściany piwnicy: surowe żelbetowe lub tynkowane tynkiem cementowo-wapiennym,
- ściany parteru, piętra oraz stropy: tynki gipsowe mokre maszynowe,
- podłogi w pokojach, łazience, kuchni i holu- podłoże betonowe pod posadzki.

Brama garażowa sterowana elektrycznie

wentylacja:
- w części mieszkalnej - mechaniczna z rekuperacją - rozprowadzona kanałami do pomieszczeń,
- w części piwnicy i garażu grawitacyjna.

instalacja elektryczna:
- moc przyłączeniowa 12,5 kW,

instalacja grzewcza - pompa ciepła lub piec gazowy dwufunkcyjny (ogrzewanie + CWU), grzejniki panelowe z zaworami termostatycznymi zasilane z posadzki, białe.


Pomagam również w kredycie hipotecznym - jestem licencjonowanym doradcą kredytowym.
Zapraszam na spotkanie!

Kontakt do opiekuna:

Phinance S.A.

Krystian Sukiennik
Nieprawidłowy adres E-mail
Mapa

Strona korzysta z plików cookie w celu realizacji usług zgodnie z Polityką prywatności. Możesz określić warunki przechowywania lub dostępu do cookie w Twojej przeglądarce.