dom w zabudowie szeregowej przy Olchowej w Gdańsku

lokalizacja: Gdańsk, Olchowa

1 890 000,00 PLN

12 857,14 PLN

Opis nieruchomości

Przedstawiam Państwu wyjątkowy dom w zabudowie szeregowej - komfort, styl i doskonała lokalizacja!

GDAŃSK, Ujeścisko-Łostowice
Powierzchnia użytkowa: 105,77m²
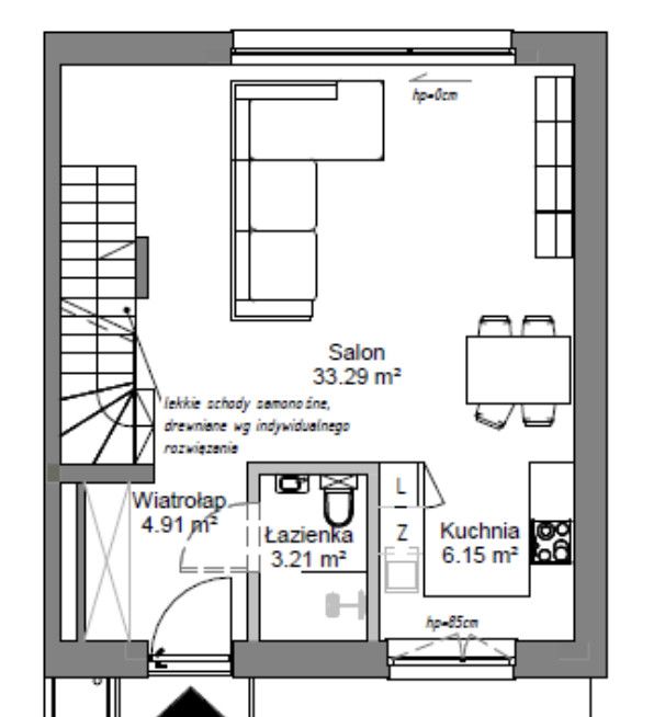
Powierzchnia użytkowa parteru: 47,56m²
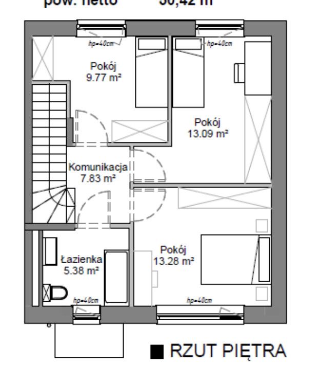
Powierzchnia użytkowa piętra: 49,35m²
Powierzchnia użytkowa garażu: 38,47m²
Działka: 213m²
Cena: 1 890 000 zł brutto

NIERUCHOMOŚĆ:

Na sprzedaż komfortowy dom w zabudowie szeregowej, położony w dobrze skomunikowanej i spokojnej części ujeściska w Gdańsku, kilkaset metrów od ul. Kartuskiej. Idealny dla rodziny ceniącej wygodę, nowoczesność i bliskość natury, przy jednoczesnym dostępie do pełnej infrastruktury miejskiej.

Dom został zaprojektowany z myślą o funkcjonalności, oszczędności i estetyce. Przestronne wnętrza, rekuperacja oraz nowoczesne wykończenie to tylko część jego atutów.

UKŁAD POMIESZCZEŃ:

Garaż podziemny:
- Miejsca na dwa auta
- Pomieszczenie gospodarcze

Parter:
- Przestronny salon z wyjściem na taras i ogród
- Salon z kuchnią
- Łazienka
- Przedpokój

Piętro:
- 3 sypialnie
- Łazienka

WYKOŃCZENIE

Stan deweloperski premium
- żelbet + bloczki Silka (świetna izolacja akustyczna)
- dach płaski, elewacja z cegły ryflowanej
- ocieplenie: styropian 20 cm
- rekuperacja + pompa ciepła lub piec gazowy
- okna PVC U=1,1 | brama segmentowa elektryczna

Wnętrze gotowe do wykończenia
- tynki gipsowe maszynowe
- wylewki betonowe
- instalacja elektryczna, wod.-kan., RTV
- pełne przyłącza miejskie (gaz, prąd, woda, kanalizacja)

DZIAŁKA I OTOCZENIE
- ogrodzenie boczne, podjazd z kostki
- spokojna, zielona okolica
- szybki dojazd do centrum i obwodnicy

LOKALIZACJA:
- Bliskość szkół, przedszkoli, sklepów, punktów usługowych
- Doskonała komunikacja z centrum miasta (autobus, tramwaj, kolej podmiejska)
- W sąsiedztwie tereny zielone, parki, ścieżki rowerowe


—————— Szczegóły techniczne ———————

Standard wykończenia:

Konstrukcja:
- Fundamenty, ściany, schody - żelbeton i bloczki silikatowe (bardzo dobra izolacja akustyczna)
- Ściany działowe murowane z bloczków SILKA o grubości 8 lub 12 cm.

Dach:
- Pokrycie dachu płaskiego: papa termozgrzewalna modyfikowana - nawierzchniowa i podkładowa,
- izolacja termiczna - styropian spadkowy mocowany mechanicznie do podłoża
- Folia paroizolacyjna
- Opierzenia blacharskie z blachy powlekanej w kolorze RAL

Elewacja:
- wykończona w kolorze naturalnej cegły ryflowanej z izolacją termiczną wykonaną metodą lekko-mokrą z ociepleniem styropianem gr. 20 cm,
- części międzyokienne i cokołowe w systemie wentylowanym z okładziną panelową w kolorze grafitowym,
- parapety zewnętrzne z blachy powlekanej kolor RAL

Wykończenie wewnętrzne:
- ściany piwnicy: surowe żelbetowe lub tynkowane tynkiem cementowo-wapiennym,
- ściany parteru, piętra oraz stropy: tynki gipsowe mokre maszynowe,
- podłogi w pokojach, łazience, kuchni i holu- podłoże betonowe pod posadzki.

Brama garażowa sterowana elektrycznie

wentylacja:
- w części mieszkalnej - mechaniczna z rekuperacją - rozprowadzona kanałami do pomieszczeń,
- w części piwnicy i garażu grawitacyjna.

instalacja elektryczna:
- moc przyłączeniowa 12,5 kW,

instalacja grzewcza - pompa ciepła lub piec gazowy dwufunkcyjny (ogrzewanie + CWU), grzejniki panelowe z zaworami termostatycznymi zasilane z posadzki, białe.


Pomagam również w kredycie hipotecznym - jestem licencjonowanym doradcą kredytowym.
Zapraszam na spotkanie!

EN
I present to you an exceptional terraced house - comfort, style and excellent location!

GDAŃSK, Ujeścisko-Łostowice

Usable area: 105.77m²
Usable area of ​​the ground floor: 47.56m²
Usable area of ​​the first floor: 49.35m²
Usable area of ​​the garage: 38.47m²
Plot: 213m²
Price: PLN 1,890,000 gross

PROPERTY:

For sale a comfortable terraced house, located in a well-connected and quiet part of Ujeścisko in Gdańsk, a few hundred meters from Kartuska Street. Ideal for a family that values ​​comfort, modernity and proximity to nature, while having access to full urban infrastructure.

The house was designed with functionality, economy and aesthetics in mind. Spacious interiors, heat recovery and modern finishing are just some of its advantages.

ROOM LAYOUT:

Underground garage:
- Space for two cars
- Utility room

Ground floor:
- Spacious living room with access to the terrace and garden
- Living room with kitchen
- Bathroom
- Hallway

First floor:
- 3 bedrooms
- Bathroom

FINISHING

Premium developer standard
- reinforced concrete + Silka blocks (great acoustic insulation)
- flat roof, grooved brick elevation

- insulation: 20 cm polystyrene
- heat recovery + heat pump or gas furnace
- PVC windows U=1.1 | electric sectional gate

Interior ready for finishing
- machine gypsum plasters
- concrete screeds
- electrical, water and sewage, RTV installations

- full city connections (gas, electricity, water, sewage)

PLOT AND SURROUNDINGS
- side fence, driveway made of cobblestones
- quiet, green area
- quick access to the city center and the ring road

LOCATION:
- Proximity to schools, kindergartens, shops, service points
- Excellent communication with the city center (bus, tram, suburban railway)

- In the vicinity of green areas, parks, bicycle paths

—————— Technical details ———————

Standard of finishing:

Construction:
- Foundations, walls, stairs - reinforced concrete and silicate blocks (very good acoustic insulation)

- Partition walls made of SILKA blocks with a thickness of 8 or 12 cm.

Roof:
- Flat roof covering: modified heat-weldable roofing felt - top and base,
- thermal insulation - sloped polystyrene mechanically attached to the substrate
- Vapour barrier foil
- Sheet metal flashings made of coated sheet metal in RAL colour

Facade:
- finished in the colour of natural grooved brick with thermal insulation made using the light-wet method with insulation of polystyrene thick. 20 cm,
- parts between windows and base in a ventilated system with graphite panel cladding,
- external window sills made of RAL coated sheet metal

Internal finish:
- basement walls: raw reinforced concrete or plastered with cement-lime plaster,
- ground floor, first floor walls and ceilings: wet machine gypsum plasters,
- floors in rooms, bathroom, kitchen and hall - concrete base under the flooring.

Garage door controlled electrically

ventilation:
- in the residential part - mechanical with heat recovery - distributed through channels to the rooms,
- gravity in the basement and garage parts.

electrical installation:
- connection power 12.5 kW,

heating installation - heat pump or dual-function gas furnace (heating + DHW), panel radiators with thermostatic valves powered from the floor, white.


Kontakt do opiekuna:

Phinance S.A.

Krystian Sukiennik
Nieprawidłowy adres E-mail
Mapa

Strona korzysta z plików cookie w celu realizacji usług zgodnie z Polityką prywatności. Możesz określić warunki przechowywania lub dostępu do cookie w Twojej przeglądarce.