Przed Państwem wyjątkowa okazja do zamieszkania w jednej z najbardziej pożądanych lokalizacji Trójmiasta.
Prezentujemy dom w zabudowie szeregowej-segment środkowy o powierzchni całkowitej 183,74 m² w nowoczesnej, kameralnej inwestycji Kartuska 300.
15 minut od starego miasta i Galerii Bałtyckiej
Projekt wnętrza w cenie!!
Dom: Sztuka Nowoczesnego Budownictwa i Przemyślanej Przestrzeni
Ten dom to kwintesencja rynku premium - zarówno pod względem projektu, jak i wykonania. Oferuje 183,74 m² powierzchni całkowitej, inteligentnie rozdzielonej na trzy funkcjonalne kondygnacje, które tworzą harmonijną i przestronną całość.
• Garaż i piwnica (58,70 m²): przestronny, dwustanowiskowy garaż (47,39 m²) to nie tylko miejsce na auto, ale i gwarancja wygody. Na tym poziomie znajduje się także nowoczesne pomieszczenie gospodarcze, w którym zlokalizowano wysokiej klasy pompę ciepła i rekuperator - gwarantujące niskie koszty eksploatacji i stały dopływ świeżego, filtrowanego powietrza przez cały rok.
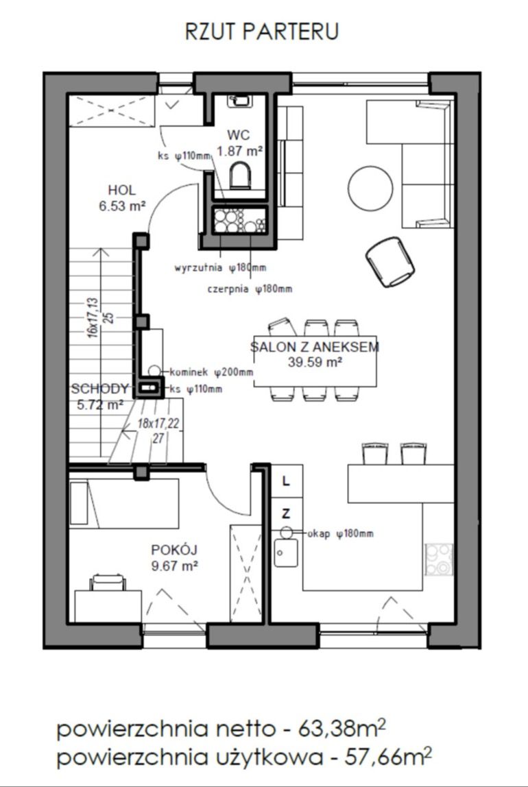
• Parter (63,38 m²): wejście przez przestronny wiatrołap prowadzi do olśniewającej, otwartej przestrzeni dziennej. Przestronny salon z dużym aneksem kuchennym (łącznie 39,59 m²) tworzy idealne miejsce zarówno dla rodzinnych spotkań, jak i przyjęć w gronie przyjaciół. Tu też znajduje się osobny pokój (9,67 m²) mogący służyć jako gabinet lub sypialnia dla gości. Komfort parteru dopełnia dodatkowe WC.
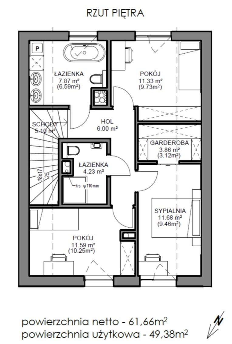
• Pierwsze piętro (61,66 m²): ta kondygnacja jest sferą prywatną. Składa się z trzech komfortowych sypialni (o pow. 11,59 m², 11,33 m² i 11,68 m²) oraz dwóch przestronnychj łazienek (4,23 m² i 7,87 m²), zapewniającej intymność i wypoczynek wszystkim domownikom.
To więcej niż dom, to fundament pod Twój wygodny styl życia.
Dodatkowe atuty podkreślające wyjątkowość nieruchomości:
• Słoneczna działka (353m²): dom został optymalnie zorientowany, z ekspozycją na stronę południową z akcentem zachodnim oraz północną z akcentem wschodnim. Dzięki temu wnętrza przez cały dzień są wypełnione naturalnym światłem, co tworzy niepowtarzalny, przyjazny mikroklimat.
• Sąsiedztwo: kameralny charakter inwestycji i podobny standard zabudowy przyciągają wymagających, spokojnych mieszkańców, co gwarantuje wyjątkową atmosferę miejsca.
• Idealna lokalizacja: zamknięta, spokojna enklawa w sercu nowoczesnej i doskonale skomunikowanej dzielnicy. Kilka minut dzieli Cię od obwodnicy Trójmiasta, a zaledwie 3,5 km od ścisłego centrum Gdańska i Galerii Forum. Całe otoczenie oferuje pełne, nowoczesne zaplecze handlowo-usługowe.
Kompleksowe Wsparcie w Zakupie Twojego Domu
Dla naszych Klientów przygotowaliśmy bezpłatną, ekspercką pomoc w uzyskaniu optymalnego finansowania. Dzięki współpracy ze wszystkimi bankami komercyjnymi, zapewniamy dostęp do najlepszych ofert rynkowych. Nasi doradcy nie tylko zabiegają o najkorzystniejsze warunki kredytu, ale także, w razie potrzeby, profesjonalnie pomogą zbudować i udokumentować solidną zdolność kredytową pod zakup tej konkretnej nieruchomości.
Skontaktuj się, aby umówić się na prezentację inwestycji w trakcie powstawania.).
Karuska 300 prestiżowa lokalizacja w sercu Gdańska
lokalizacja: Gdańsk, Kartuska
1 999 000,00 PLN
10 879,50 PLN
Dane szczegółowe
- Typ transakcji: sprzedaż
- Typ nieruchomości: Dom
- Lokalizacja: Gdańsk Łostowice, Kartuska
- Powierzchnia:183,74 m2
- Liczba pokoi: 5
- Rok budowy: 2025
- Piętro: 0 z 1
-
Powierzchnia działki:
245 m2
- Numer oferty: 160937
- Cena: 1 999 000,00 PLN
- Cena za m2: 10 879,50 PLN
Opis nieruchomości
Adres strony www: https:// NULL